看了这位北京酷女孩的55㎡新家,终于发现,小家真能装出大宅
当下这个时代对女性的要求确实是越来越高,很多女孩子都越来越独立了,例如今日屋主便是我心中的榜样女孩,通过自己的奋斗打拼,她在北京买下了属于自己的人生第一套房子,并装修成了自己热爱的极简风格。(图源:大炎演绎设计)
女孩子的家就一定要粉嫩、公主、充满少女气息吗?当然不是,请撕掉那些别人贴上来的标签吧。
屋主是一个做事雷厉风行的酷酷女孩,她家最终的完工效果也和她一样超酷。参观完全屋我终于发现,55㎡两室一厅的小家,经由设计师巧妙规划,原来真的能装出大宅范,全屋主空间巧用环绕式过道,更是为户型扬长避短,完美极致的利用了空间,还等什么,跟随我的脚步一起看看吧,相信你会有所收获。
设计说明
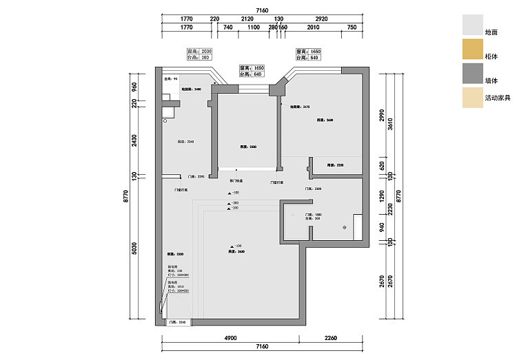
55㎡使用面积,两室一厅格局,数据不含公摊。(算上公摊大约是75-80㎡的建筑面积)
▲原始户型图
房屋优缺点比较鲜明。
①优势:空间相对动静分离,几乎没有浪费的面积。
②缺点:客厅采光略差,需要借助朝南的房间才能达成白天的自然采光。
③屋主需求:不喜欢木色调,需要大量的储物空间装进她的超多衣服,需要更好的采光效果和更大气的室内氛围。
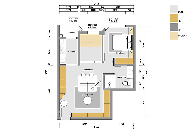
▲改造后方案图
结合屋主生活诉求和房屋本身的优缺点,进行扬长避短,@大炎演绎设计师做了如下改造细节:
①以环绕式布局打造主空间的家具布置和收纳格局,巧妙利用空间。
②利用三角柜切出玄关端景,让入户区域更完整独立。
③房间门均设长虹玻璃,保证客厅白天日照采光最大化。
屋内实景
▲迷你玄关
入户便是客厅,想打造单独玄关区很难,对独居户型来说也不是太有必要。
设计师巧用柜体造型,做出三角区端景。从视觉上不仅让入户区域更为独立鲜明,也成为了好看的端景区,陈列女主人喜爱的装饰品,更显生活气息。
紧接着左手边还有一面墙的定制超大全身镜,不仅方便爱美的女主人整理仪容,还拉伸了双倍的视觉空间,适当的镜面装饰真的是让小家显大的好办法!
▲客厅改造前后对比
改造前的客厅,本身因为格局问题,过道就要留出较多空间,反而在墙面一角还有一个迷你储物间的门洞,造成了空间浪费。
改造后整体拆除,首先保证客厅面积最大化,其次结合本身客厅空间较为方正的特点,巧用环绕式过道设计。
▲居住动线示意图
环绕式过道的好处:把沙发、餐桌居中摆放,中间为功能区,四周散开储物空间。
而过道形成一个首尾衔接的“闭环”,例如当我要去到空间中的某个位置时,从左右两个方向走都是可以的,可以顺着动线走一圈,实际生活就会发现这样的设计不仅提升了生活效率,还完美利用了此类户型的空间,自由灵动。(如上图所示)
▲隐形柜
大面积的储物空间,在极简装修中如何表现?就是如同屋主家一样,尽可能的让大面积的柜体保持视觉上的“隐形”。
无拉手的白色极简柜门就是最好的办法,从视觉上他和米白色墙面可以更好的融合,内置弹开器即可,平时只需要通过按压就可以开关门。底部一定记得设置一圈灯带,打开后空间更有层次感,极简不失温馨,也让大面积的柜体更显视觉上的轻盈。
▲餐厅
视觉上的层次感也一定要拿捏好。例如,电视墙柜体中间调整好比例,留出以黑色背景打底的镂空区,在悬挂影音设备的时候,黑色的电器就可以和背景更巧妙的融合,减轻视觉突兀感,同时黑白对比也让视觉效果更为深邃,层次更为鲜明,是拉伸空间倍显大气的绝佳办法。
屋主家的沙发的款式超棒,本身的造型感就十分的简约炫酷,实际中间的靠背是可以做进行旋转双面使用的。
沙发还可以兼顾餐椅使用。选择这样的家具也是出于屋主实际生活考虑,在北京工作打拼,生活忙碌,年轻人平时很少有时间看电视。不过屋主平时又比较好客,经常邀请闺蜜来家中“搓饭”。如何协调好客厅和餐厅空间占比,选择这种一物两用的沙发是最合适的,并且整体格调也匹配房屋本身风格以及户型特点,真妙!
▲过道
主空间的采光有限,利用长虹玻璃门做卧室隔墙,不仅保证了空间单独性,而且透光不透影,让客厅更显敞亮大气。
白天的时候可以保持推拉门打开,让整个空间通透感更强,更有“弹性”。
站在客厅看入户区域,有了镜面的加持,是不是房子瞬间变得很大?
沿着镜子向右看是一个超大的电器收纳区,因为厨房较小,这里集中收纳了大冰箱、烤箱、蒸箱,对于热爱制作美食的女主人来说,这些功能完美满足了她的需求。
侧面有三角柜的遮挡,进屋第一视角看不见这些电器,完美~
房子本身的生活阳台面积很小,所以干脆在这里也嵌入了洗烘一体机,为阳台空间减负。
从生活的角度而言,也缩短了日常生活的家务动线。富余空间装上吊柜和地柜,除了收纳清洁用品,也可充当水吧台、餐边柜,同时存放一些备用杯具。
▲厨房改造前后对比
相比之前厨房仅有一小部分空间,利用外面的空间真的让储物和功能倍增。
▲厨房
原本的厨房空间就留作单独的热炒区,和主空间有玻璃推拉门隔开,炒菜的时候关上门,平时会保持敞开,让空间尽可能显得大气通透,同时解决中厨的油烟问题。
▲主卧改造前后对比1
摒弃了传统的成品床头靠背和床头柜,直接一体式定制,减少视觉死角和卫生死角,看上去更为大气高级。
▲主卧改造前后对比2
床头的半护墙板直接代替靠背,日常可以辅助抱枕靠在上面,干净整洁还好打理,左右两侧附带定制的悬空床头柜,设计整体性更好。
右侧衣柜的设计也可圈可点,把床头柜转角延长,设置更多抽屉。而上方悬空留出30侧面空间设置顶天衣柜,层次鲜明倍显精致。这里的柜门选择了白色做旧斑驳纹理,更显个性耐看,超酷!
床对面的空白墙面则可以当做天然的投影幕布,睡前打开投影仪看电影,很舒服。
▲次卧改造前后对比
女主人的父母在本地也有房子,平时探望方便,所以不会过来留宿,家里也很少来客人留宿,所以次卧就不必作为客房。因为平时她有练瑜伽的习惯,这个房间就改造成了一个小型瑜伽室。剩余一点面积靠窗打造一个地台阅读区,地台下可以储物,地台上坐卧皆可,品茶、看书,临时办公都很棒。
▲卫生间
卫浴的图片不是很多,这里就主要展示一下洗漱区的设计,定制“台盆一体”浴室柜非常大气好打扫。大面积的镜柜也能藏入女主人超多的瓶瓶罐罐。下方的镂空区,后期可以辅助收纳筐陈列杂物,美观好看使用方便。
文末总结:
看了她屋主她家巧妙设计,我总结出三个让小家装出大宅范的设计妙法:
①主空间打造环绕式过道,让储物功能最大化,生活起来灵活且舒适,不局促更显大气。
②减少过多丰富色调,尽可能让柜体和墙面从视觉上融为一体,隐形门是最善用的方法。
③善用镜面、玻璃材质,例如少量点缀全身镜和透光不透影的常用玻璃,通过阳光的贯穿和折射,让主空间视觉效果更大气。
温馨提示:当然了以上设计理念也要遵循每个人的喜好,并不适用于所有人,如果喜欢屋主家这种格调,确实是不错的参考选择。
本文就分享到这里了,希望给大家一些参考,如果你有更多关于小户型设计的建议,也欢迎在留言区讨论互动,感谢阅读!
